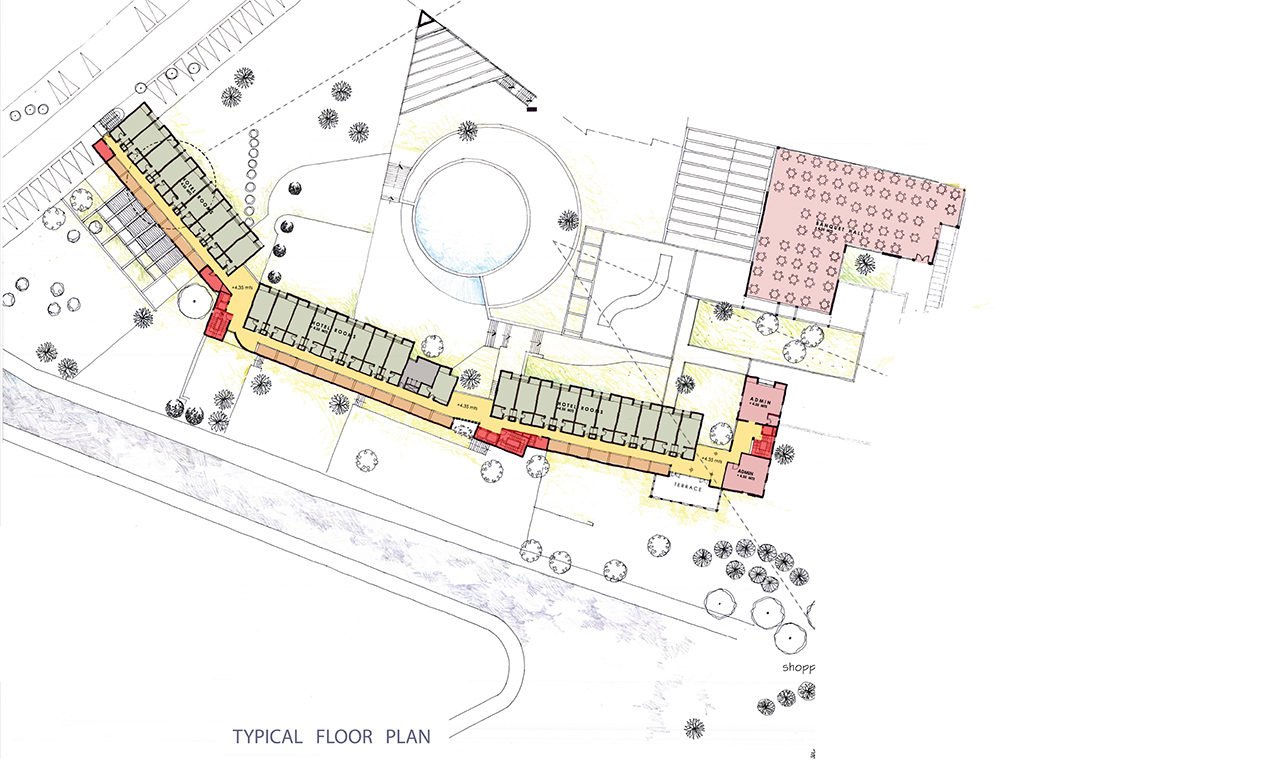
Minto Hall Competition (3rd Place)
Bhopal, India |
2003 | 47900m²